четверг, 28 июля 2016 г.

трамвайная линия Екатеринбург — Верхняя Пышма

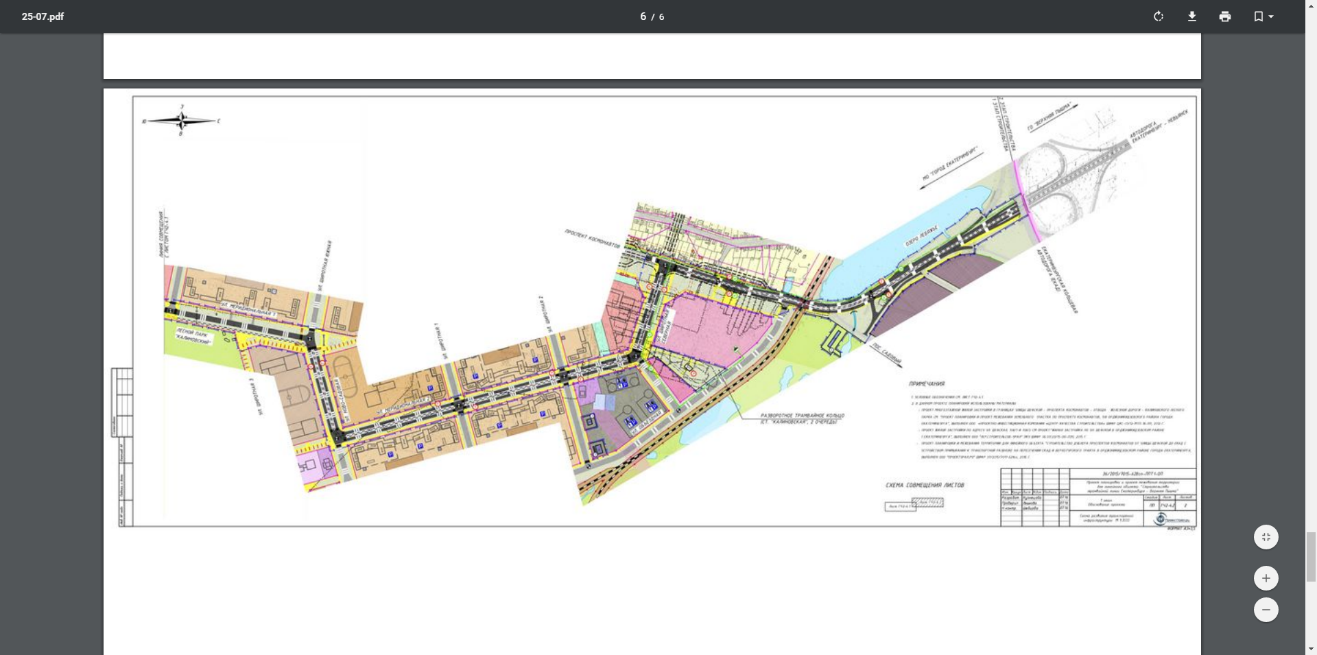
Через Эльмаш — на Успенский проспект: схема трамвайной линии Екатеринбург — Верхняя Пышма

Публичные слушания по проекту строительства новой трамвайной ветки в Екатеринбурге запланированы на 10 августа, в Верхней Пышме — на 2 августа.
Министерство строительства Свердловской области показало, как будет выглядеть маршрут трамвая, который соединит Екатеринбург и Верхнюю Пышму.
В столице Среднего Урала новая ветка будет проложена от
 существующей конечной остановки трамвая «Фрезеровщиков», пройдет по улице Шефской, через жилой район «Северная корона», который УГМК-холдинг планирует построить на месте бывшего тепличного хозяйства — по новым улицам Меридиальной 1-й, Ново-Садовой, Меридиальной 2-й; мимо Калиновского парка (там же будет дополнительное разворотное кольцо), а затем выйдет на проспект Космонавтов и дойдет до ЕКАД. (Все картинки кликабельны).

http://goo.gl/Y4IvbR
Трамвайная линия начнется от существующей конечной остановки трамвая «Фрезеровщиков» и пройдет по улице Шефской к новому жилому району «Северная корона».
http://goo.gl/62Ja1r

Трамвайная линия продолжится по новым улицам Меридиальной 1-й, Ново-Садовой, Меридиальной 2-й, а затем выйдет на проспект Космонавтов и дойдет до ЕКАД.
После этого дорога пойдет по Верхней Пышме: по Успенскому проспекту до улицы Октябрьской, где также будет разворотное кольцо.

http://goo.gl/wDLdDk
Разворотное кольцо на улице Октябрьской в Пышме.
Кроме того, трамвайную линию сделают на улице Красных Партизан, которая дойдет до Петрова. При этом улицу Красных Партизан соединят с Октябрьской через улицу Горняков, которую продлят.
http://goo.gl/dg8i41

Трамвайная линия по улице Красных Партизан до улицы Петрова в Пышме.
Публичные слушания по проекту строительства новой трамвайной ветки, которая пройдет по Екатеринбургу, запланированы на 10 августа. Они пройдут в 17:30 в Уральском центре народного искусства (проспект Космонавтов, 23, концертный зал). Публичные слушания по строительству ветки в Верхней Пышме пройдут 2 августа в 17:30 в актовом зале Дома детского творчества (улица Менделеева, 7).
 Напомним, что для прокладки маршрута в генеральные планы обоих городов уже внесли соответствующие изменения. Уже в ноябре этого года планируется дать старт ремонтным работам. Запустить движение вагонов собираются в конце 2019-го.
В УГМК уверены, что строительство этой трамвайной ветки — самый важный проект на сегодняшний день. Это соединение двух городов, которое должно стать толчком для развития общей улично-дорожной сети, общественного транспорта, инженерных коммуникаций и многого другого. Стоимость проекта оценивается примерно в один миллиард рублей.
источник

Комментариев нет:

Отправить комментарий